On Friday, March 14th, the Trump Administration released a new executive order calling for a reduction in personnel and operations at the Community Development Financial Institutions Fund (CDFI Fund) to the bare minimum required by law. In the 30 years since the authorizing legislation was passed, CDFIs have become an essential pillar of community development financing. As a national coalition of real estate developers and investors who advocate for sustainable, equitable, and walkable development in America’s communities, LOCUS has first-hand experience utilizing CDFI financing to build critical community projects, including much-needed housing in vibrant, high-opportunity locations. Congress and the Trump Administration must preserve the CDFI Fund so it can continue supporting projects like those highlighted below.

CDFI fund history and overall impact
The CDFI Fund was established more than 30 years ago as a bipartisan effort to provide investment capital and financial services to underserved people, small businesses, and communities. Specifically, the CDFI Fund supports the growth and capacity of a nationwide network of lenders, investors, and financial service providers who, in turn, provide affordable credit, capital, and financial services for the communities they operate in, with a particular focus on under-resourced rural and urban areas. Described by Representative Young Kim (R-CA) on X as “the best of public-private sector collaboration,” the CDFI Fund provides capital infusions and technical assistance to individual CDFIs who then use that capital to provide business and homeownership loans, invest in the creation or preservation of affordable homes, and provide financing for the creation of needed community assets such as childcare and healthcare centers.
Data on the reach and impact of the CDFI program clearly indicates its effectiveness: the executive order targets a program that supports institutions that make $38 billion in loans and investments annually and leverages $8 in private capital for every $1 of funding provided by the program. Recent analysis from the Urban Institute found that CDFIs invest heavily throughout the country including in some of the nation’s most distressed rural places. The states with the most CDFI investment over the past decade were Florida and Mississippi, with $30 billion each (inflation-adjusted). The rest of the top 10 included California, Louisiana, New York, Texas, North Carolina, Wisconsin, Michigan, and Iowa–a geographically and politically diverse set of states. As the nation battles a housing supply crisis, CDFI Financial Assistance award recipients are financing over 50,000 units a year. In addition to the federal dollars, various states have companion programs that provide additional funding to CDFIs to further multiply the program’s impact.
While recent bipartisan expressions of Congressional support for the program are a positive sign, the Trump Administration should be wary of undercutting a high-impact, cost-effective program that supports the creation of new housing and other vital community projects across the nation. The surplus demand for the CDFI Fund’s resources demonstrates that CDFIs stand poised to further their impact with additional funding, not scale back on their community-forward investments. The projects below provide a snapshot of the types of housing projects that CDFIs make possible and the more vibrant, more housing-abundant future that is at stake if the plans to gut the CDFI Fund go forward.
Project profiles
Housing for Veterans in Texas
Location: Kerrville, TX
CDFI: LIIF
In Kerrville, Texas, the CDFI LIIF provided a $500,000 predevelopment loan to Solutions for Veterans, a veteran-led nonprofit affordable housing developer whose mission is to bring quality housing and social services to veterans who have trouble accessing basic needs. The project, Freedom’s Path at Kerrville II, will create 52 units of affordable housing reserved for military veterans who are disabled and/or are experiencing near homelessness. The vast majority of units will be affordable to Veterans earning between 30% and 60% of the area median income (AMI). The project sponsor is also leasing the land the units will be built on from the U.S. Department of Veterans Affairs for 99 years, ensuring that costs remain low and rent stays affordable for the foreseeable future.
Family and senior apartments in Coachella Valley
Location: Indio, CA
CDFI: LIIF
Description: Previously a dilapidated farm labor housing site, the JFM Villas family and senior apartments in the Coachella Valley will be transformed into much-needed housing for families, seniors, and the agricultural workforce thanks to CDFI investment. The CDFI LIIF closed two predevelopment loans worth $3,000,000 with the Coachella Valley Housing Coalition (CVHC) for predevelopment expenses to construct 150 new affordable units in Indio, 50 of which are set aside for seniors. The development plans also include a childcare center, recreational spaces such as a tot lot, and senior facilities such as a library.
Walkable, affordable homeownership opportunities in Ypsilanti
Location: Ypsilanti, MI
CDFI: IFF
Description: The Dorsey Estates project includes 46 for-sale cottages, duplexes, and townhomes within an intentionally designed walkable housing development in Ypsilanti’s Historic Depot Town. The project is partially funded by American Rescue Plan dollars and includes 23 units of perpetually affordable housing that will be available to households at 40-80% AMI. The overall development plan includes pocket parks, bike racks, and rain gardens. The complex project is supported by a wide range of funders, including the Washtenaw County Office of Community and Economic Development, the Washtenaw County Brownfield Authority, the Ann Arbor Community Foundation, IFF (a CDFI), and the City of Ypsilanti.
Funding from three CDFIs create housing designed to support the transition from poverty to homeownership in Benton Harbor
Location: Benton Harbor, MI
CDFIs: Opportunity Resource Fund, Cinnaire Lending, and IFF
Project T in Benton Harbor is a mixed-use affordable housing development being built on a former hospital site led by Renovare Development and Harbor Habitat. The campus-style development is designed to support transitions from poverty to homeownership and includes 30 for-sale duplexes limited to 120% of area median income, eight for-sale duplex units constructed via the traditional Habitat for Humanity model, and a mixed-use building that will include 39 one and two-bedroom rental apartments for individuals and families between 40 and 80 percent of AMI as well as a child care facility. Phase 1 of the project was funded by three CDFIs.
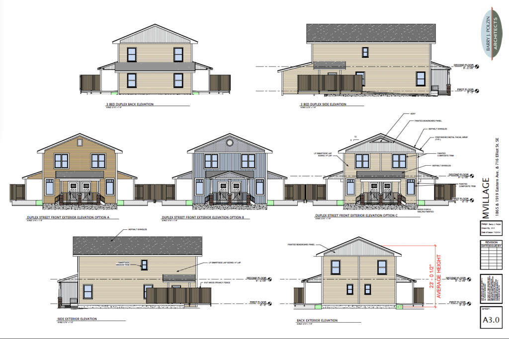
Church-developer partnership creates affordable and missing middle housing units in Grand Rapids
Location: Grand Rapids, MI
CDFI: IFF
Description: The MVillage project is an affordable housing development on a former funeral home site being led by a unique partnership between Renovare Development and Messiah Baptist Church, supported by MiNeighborhood grant funding from Michigan State Housing Development Authority and CDFI financing. Messiah Baptist Church currently owns and operates a transitional housing facility for families experiencing housing issues and views the MVillage project, which includes 50 affordable rental units and 20 for-sale Missing Middle units (available for individuals or families making 60-120% AMI), as an extension of the church’s work to provide housing solutions for the community.
More about the CDFI Fund
CDFIs step into the gaps in the financial system conventional lenders cannot serve, with the goal of acting as an on-ramp in the long term between these communities and traditional financing providers. A full list of the more than 1,400 certified CDFIs as of January 2024 is available here.